Bilocale in vendita

Fara In Sabina, Via Martiri Della Resistenza - Passo Corese
€ 254.000
2 locali 2 locali
70 Mq 70 Mq
1 bagno 1 bagno

Bilocale in vendita

Fara In Sabina, Via Martiri Della Resistenza - Passo Corese

Descrizione annuncio

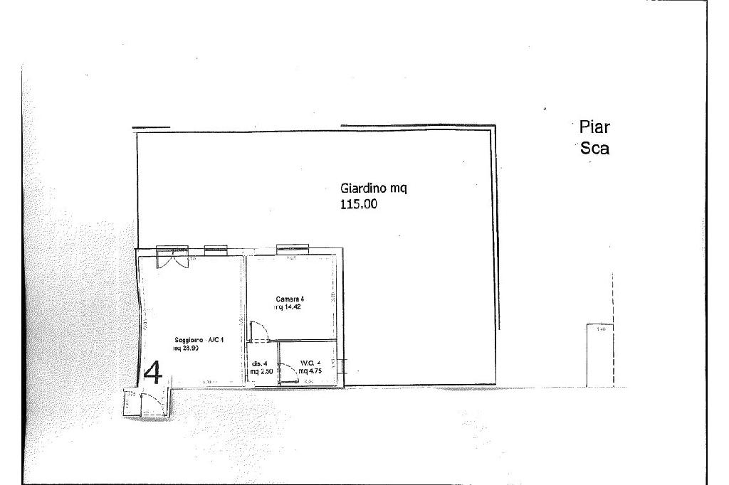
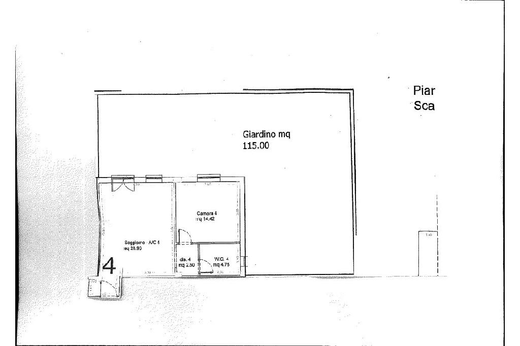
Nel cuore di Passo Corese, nel comune di Fara in Sabina, proponiamo in vendita un appartamento di nuova costruzione.

L'immobile, situato al piano terra di un elegante complesso residenziale, si estende su una superficie di circa 70 mq, offrendo un ambiente accogliente e funzionale.

L'appartamento bilocale si compone di un soggiorno con angolo cottura, disimpegno, camera da letto matrimoniale e un bagno finestrato.

Tra i principali comfort, l'immobile è dotato di aria condizionata, impianto fotovoltaico da 1,5 kW e sistema di riscaldamento a pompa di calore con fancoil in ogni stanza.

Inoltre, il bagno è provvisto di scalda salviette.

Il portoncino d'ingresso è blindato, mentre gli infissi interni in PVC sono con apertura battente + anta ribalta, e quelli esterni sono dotati di persiane in acciaio, garantendo sicurezza e isolamento.

A completare la proprietà, un giardino privato di circa 115,00 mq, un posto auto e una cantina, offrendo praticità e comfort.

Questa soluzione si distingue per la sua posizione strategica e per la qualità costruttiva, ideale per chi desidera un ambiente tranquillo senza rinunciare alla comodità dei servizi cittadini.

Passo Corese è in notevole espansione è presente la stazione ferroviaria Fara Sabina con cadenza dei treni ogni 15 minuti e casello autostradale A1 Fiano Romano a soli 10 minuti di macchina senza rinunciare ai confort della Sabina.

Mostra tutto

Nelle vicinanze

Trasporto pubblico Trasporto pubblico
Fara Sabina-Montelibretti
Fara Sabina-Montelibretti
540 m
Trasporto pubblico
590 m
Scuole Scuole
Polo didattico
1,1 Km
Farmacia Farmacia
Farmacia
380 m
Parafarmacia Punto Farma
420 m
Farmacia La Stazione
620 m
Supermercati Supermercati
Supermercati
190 m
Supermercato Alimentari
510 m
Coop
580 m
Negozi Negozi
Equo Sol Altromercato
320 m
Negozi
600 m
Cristal Fashion
1,3 Km
Ristoranti Ristoranti
Puro Pizza and Food
770 m
Mostra tutto

Caratteristiche

Rif.:
61132612
Piano:
Terra con giardino di 2
Totale piani:
2
Box:
1
Posti auto:
1
Camere da letto:
1
Mostra tutto
Prezzo Prezzo
€ 254.000
Rata mutuo Rata mutuo
€ 1.199 / mese
Spese annue Spese annue
€ 1
Proponi il tuo prezzoProponi il tuo prezzo

Classe Energetica

A4
A4
A4
A4
A4
A4
A4
A4
A4
EP globale non rinnovabile:
65.24 kW h/m² anno
EP globale rinnovabile:
27.98 kW h/m² anno
EP invernale del fabbricato:
EP estiva del fabbricato:
Anno di costruzione:
2026
Riscaldamento:
Autonomo
Tipo impianto:
Ad aria
Tipo alimentazione:
Altro

Ti interessa visionare l'immobile?

Fissa un appuntamento  Fissa un appuntamento

Richiedi informazioni

Clicca su Leggi per aprire l'informativa
* Questi campi sono obbligatori

Calcola il tuo mutuo

Semplice e senza impegno
Anticipo

( % )
Mutuo

( % )

pochi semplici passi

inserisci i tuoi dati
Questionario completato
Grazie per aver richiesto un appuntamento senza impegno con un nostro Consulente del Credito e Assicurativo.

Hai inserito correttamente tutti i dati necessari e a breve riceverai una e-mail con un link da convalidare per inviare i tuoi dati.
Affiliato
Grupposabinacures Srl
Via Servilia, 38 02032 Fara In Sabina (RI)

Il nostro staff


  • Andrea Lucio Giulivi
    Affiliato

  • Davide Galante
    Responsabile

  • Mirko Flamini
    Collaboratore

  • Elena Papi
    Coordinatrice
Via Servilia, 38 02032 Fara In Sabina (RI)
Zona: Fara Sabina-Passo Corese
Mostra su mappa
Orari: Dal Lunedi al Venerdi 08:30-13:00 / 15:30-19:30 Sabato 09:00 - 17:00 (orario continuato).
Affiliato
Grupposabinacures Srl
Via Servilia, 38 02032 Fara In Sabina (RI)

2025 Tecnocasa Franchising S.p.A. - P. IVA 08365160152 - Via Monte Bianco 60/A 20089 Rozzano (MI). Ogni agenzia ha un proprio titolare ed è autonoma. Privacy policy | Policy utilizzo | Cookie policy