Trilocale in vendita

Fara In Sabina, Via Martiri della Resistenza - Passo Corese
€ 290.000
3 locali 3 locali
80 Mq 80 Mq
1 bagno 1 bagno

Trilocale in vendita

Fara In Sabina, Via Martiri della Resistenza - Passo Corese

Descrizione annuncio

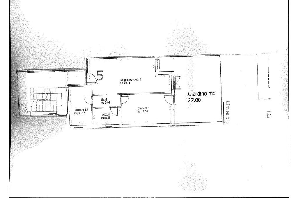
Nel cuore di Passo Corese, nel comune di Fara in Sabina, proponiamo in vendita un appartamento di nuova costruzione.

L'immobile, situato al piano terra di un elegante complesso residenziale, si estende su una superficie di circa 80 mq, offrendo ambienti accoglienti e funzionali.

L'appartamento , trilocale con giardino, è composto da un ampio soggiorno con angolo cottura con accesso diretto al giardino, disimpegno, camera da letto matrimoniale anch'essa con accesso al giardino, cameretta e bagno finestrato.

Tra i principali comfort troviamo aria condizionata, impianto fotovoltaico da 1,5 kW e sistema di riscaldamento a pompa di calore con fancoil in ogni stanza.

Il bagno è inoltre dotato di scalda salviette.

Il portoncino d'ingresso blindato, gli infissi in PVC con apertura a battente e anta ribalta, e le persiane esterne in acciaio garantiscono sicurezza e un ottimo isolamento termoacustico.

A completare la proprietà, un giardino privato di circa 37 mq, un posto auto e una cantina, che assicurano ulteriore praticità e comfort.

Questa soluzione si distingue per la posizione strategica e per l'alta qualità costruttiva, ideale per chi desidera vivere in un ambiente tranquillo senza rinunciare alla comodità dei servizi cittadini.

Una posizione ideale per chi cerca una vita serena nella Sabina, con tutti i comfort a portata di mano.

Passo Corese è una località in forte espansione, servita dalla stazione ferroviaria Fara Sabina, con treni ogni 15 minuti, e dal casello autostradale A1 di Fiano Romano, raggiungibile in soli 10 minuti d'auto.

Mostra tutto

Nelle vicinanze

Trasporto pubblico Trasporto pubblico
Fara Sabina-Montelibretti
Fara Sabina-Montelibretti
530 m
Trasporto pubblico
570 m
Scuole Scuole
Polo didattico
1,2 Km
Farmacia Farmacia
Farmacia
390 m
Parafarmacia Punto Farma
400 m
Farmacia La Stazione
600 m
Supermercati Supermercati
Supermercati
180 m
Supermercato Alimentari
490 m
Coop
600 m
Negozi Negozi
Equo Sol Altromercato
300 m
Negozi
580 m
Cristal Fashion
1,4 Km
Ristoranti Ristoranti
Puro Pizza and Food
790 m
Mostra tutto

Caratteristiche

Rif.:
61133392
Piano:
Terra con giardino di 2
Totale piani:
2
Box:
1
Posti auto:
1
Camere da letto:
2
Mostra tutto
Prezzo Prezzo
€ 290.000
Rata mutuo Rata mutuo
€ 1.369 / mese
Spese annue Spese annue
€ 1
Proponi il tuo prezzoProponi il tuo prezzo

Classe Energetica

A4
A4
A4
A4
A4
A4
A4
A4
A4
EP globale non rinnovabile:
65.24 kW h/m² anno
EP globale rinnovabile:
27.24 kW h/m² anno
EP invernale del fabbricato:
EP estiva del fabbricato:
Anno di costruzione:
2026
Riscaldamento:
Autonomo
Tipo impianto:
Ad aria
Tipo alimentazione:
Altro

Ti interessa visionare l'immobile?

Fissa un appuntamento  Fissa un appuntamento

Richiedi informazioni

Clicca su Leggi per aprire l'informativa
* Questi campi sono obbligatori

Calcola il tuo mutuo

Semplice e senza impegno
Anticipo

( % )
Mutuo

( % )

pochi semplici passi

inserisci i tuoi dati
Questionario completato
Grazie per aver richiesto un appuntamento senza impegno con un nostro Consulente del Credito e Assicurativo.

Hai inserito correttamente tutti i dati necessari e a breve riceverai una e-mail con un link da convalidare per inviare i tuoi dati.
Affiliato
Grupposabinacures Srl
Via Servilia, 38 02032 Fara In Sabina (RI)

Il nostro staff


  • Andrea Lucio Giulivi
    Affiliato

  • Davide Galante
    Responsabile

  • Mirko Flamini
    Collaboratore

  • Elena Papi
    Coordinatrice
Via Servilia, 38 02032 Fara In Sabina (RI)
Zona: Fara Sabina-Passo Corese
Mostra su mappa
Orari: Dal Lunedi al Venerdi 08:30-13:00 / 15:30-19:30 Sabato 09:00 - 17:00 (orario continuato).
Affiliato
Grupposabinacures Srl
Via Servilia, 38 02032 Fara In Sabina (RI)

2025 Tecnocasa Franchising S.p.A. - P. IVA 08365160152 - Via Monte Bianco 60/A 20089 Rozzano (MI). Ogni agenzia ha un proprio titolare ed è autonoma. Privacy policy | Policy utilizzo | Cookie policy