Villa singola in vendita

Fara In Sabina, Via Polledrara - Talocci
€ 440.000
Prezzo aggiornato
10 locali 10 locali
400 Mq 400 Mq
3 bagni 3 bagni

Villa singola in vendita

Fara In Sabina, Via Polledrara - Talocci

Descrizione annuncio

Nel cuore della località di Talocci, a soli 8 km dal centro di Passo Corese, proponiamo in vendita una villa indipendente con ampio terreno.

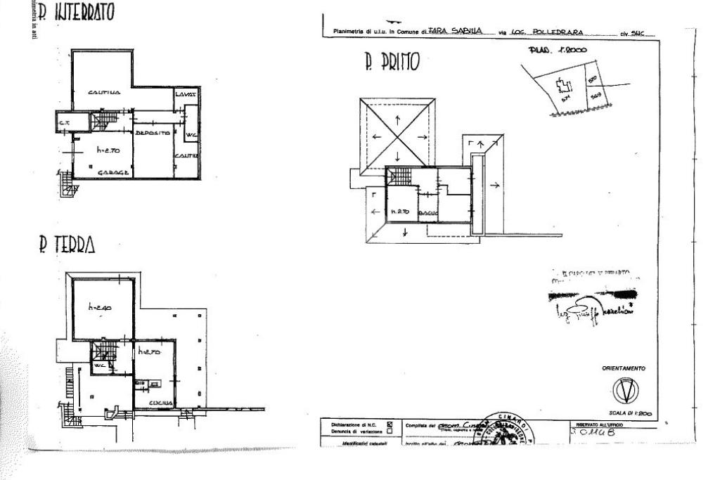
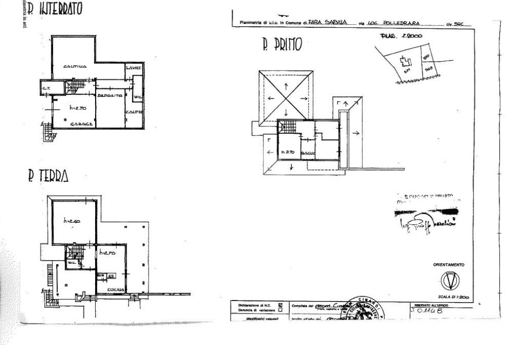
Realizzata nel 2000, la proprietà si sviluppa su una superficie di circa 400 mq di cui 280 mq residenziali distribuiti su più livelli.

L’ingresso principale, attraverso un accogliente portico, conduce al piano terra, dove troviamo un disimpegno che apre su una sala da pranzo con camino, una cucina abitabile con ripostiglio e accesso diretto al portico esterno, un salotto con camino e un bagno con doccia.

Tramite una scala interna si accede al primo piano, composto da due camere da letto con accesso al balcone, un bagno con vasca e doccia e una camera matrimoniale.

Il piano seminterrato ospita due cantine, un locale deposito, una lavanderia e un bagno.

La villa è circondata da un terreno di circa 35.410 mq, impreziosito da 400 piante di ulivo e da una piscina privata, ideale per trascorrere momenti di relax all’aperto.

Completano la proprietà un garage e posti auto scoperti, che garantiscono ampio spazio per il parcheggio.

Questa villa rappresenta un’opportunità ideale per chi desidera una residenza spaziosa, ben strutturata e immersa nella tranquillità, pur restando a breve distanza dai principali servizi e collegamenti.

Mostra tutto

Nelle vicinanze

Ristoranti Ristoranti
Santo Pietro
1,7 Km
La Caravella da Positano
2,6 Km
Mostra tutto

Caratteristiche

Rif.:
61140659
Piano:
1 di 1 (Piano su più livelli)
Box:
1
Posti auto:
3
Balconi:
1
Camere da letto:
3
Mostra tutto
Prezzo Prezzo
€ 440.000
Rata mutuo Rata mutuo
€ 2.054 / mese
Spese annue Spese annue
€ 1
Proponi il tuo prezzoProponi il tuo prezzo

Classe Energetica

G
G
G
G
G
G
G
G
G
EP globale non rinnovabile:
193.00 kW h/m² anno
EP globale rinnovabile:
188.00 kW h/m² anno
EP invernale del fabbricato:
EP estiva del fabbricato:
Anno di costruzione:
2000
Riscaldamento:
Autonomo
Tipo impianto:
A radiatori
Tipo alimentazione:
GPL

Prezzo ridotto di €1 (4%%)

Ti interessa visionare l'immobile?

Fissa un appuntamento  Fissa un appuntamento

Richiedi informazioni

Clicca su Leggi per aprire l'informativa
* Questi campi sono obbligatori

Calcola il tuo mutuo

Semplice e senza impegno
Anticipo

( % )
Mutuo

( % )

pochi semplici passi

inserisci i tuoi dati
Questionario completato
Grazie per aver richiesto un appuntamento senza impegno con un nostro Consulente del Credito e Assicurativo.

Hai inserito correttamente tutti i dati necessari e a breve riceverai una e-mail con un link da convalidare per inviare i tuoi dati.
Affiliato
Grupposabinacures Srl
Via Servilia, 38 02032 Fara In Sabina (RI)

Il nostro staff


  • Andrea Lucio Giulivi
    Affiliato

  • Davide Galante
    Responsabile

  • Mirko Flamini
    Collaboratore

  • Elena Papi
    Coordinatrice
Via Servilia, 38 02032 Fara In Sabina (RI)
Zona: Fara Sabina-Passo Corese
Mostra su mappa
Orari: Dal Lunedi al Venerdi 08:30-13:00 / 15:30-19:30 Sabato 09:00 - 17:00 (orario continuato).
Affiliato
Grupposabinacures Srl
Via Servilia, 38 02032 Fara In Sabina (RI)

2026 Tecnocasa Franchising S.p.A. - P. IVA 08365160152 - Via Monte Bianco 60/A 20089 Rozzano (MI). Ogni agenzia ha un proprio titolare ed è autonoma. Privacy policy | Policy utilizzo | Cookie policy