Villa singola in vendita

Fara In Sabina, Via S. Spirito - Corese Terra
€ 380.000
10 locali 10 locali
290 Mq 290 Mq
2 bagni 2 bagni

Villa singola in vendita

Fara In Sabina, Via S. Spirito - Corese Terra

Descrizione annuncio

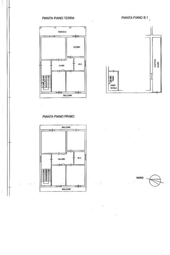
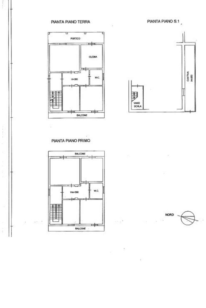
Nel cuore di Corese Terra, a soli 7 km dal centro di Passo Corese, proponiamo in vendita una villa indipendente di circa 290 mq, sviluppata su più livelli.

Al piano terra troviamo un ingresso che conduce al soggiorno, un disimpegno, una camera da letto, una camera matrimoniale con accesso a un balcone panoramico affacciato sulla vallata, un bagno con doccia e una cucina abitabile con uscita sul portico.

Tramite una scala interna si accede al primo piano, composto da un soggiorno, una cucina abitabile con camino e accesso al balcone, un bagno con vasca, una camera matrimoniale con balcone e una cameretta.

Il piano seminterrato, accessibile sia internamente che esternamente, è adibito a taverna.

Un’intercapedine perimetrale isola la struttura, garantendo ambienti asciutti e confortevoli.

L’immobile è dotato di aria condizionata, stufa a pellet, caldaia e sistema antifurto con telecamere esterne.

Presenta pavimenti in marmo, infissi in acciaio, grate di sicurezza, tapparelle, porte e portone in legno, oltre a cancello pedonale e carrabile automatizzato.

All’esterno sono presenti una cantina e un giardino privato di circa 500 mq che offre uno spazio verde ideale per momenti di relax all’aperto.

La proprietà include inoltre due posti auto, garantendo praticità e sicurezza.

Questa villa rappresenta un’opportunità ideale per chi desidera una residenza spaziosa, ben strutturata rimanendo a breve distanza dai principali servizi e collegamenti .

Mostra tutto

Nelle vicinanze

Negozi Negozi
Alimentari
2,7 Km
Le Molinare
2,7 Km
Carrefour Express
2,8 Km
Bar Bar
Pallino
2,3 Km
Bar
2,8 Km
Ristoranti Ristoranti
Il Giardino
2,8 Km
Mostra tutto

Caratteristiche

Rif.:
61142954
Piano:
1 di 1 (Piano su più livelli)
Posti auto:
2
Balconi:
3
Camere da letto:
4
Arredamento:
Assente
Mostra tutto
Prezzo Prezzo
€ 380.000
Rata mutuo Rata mutuo
€ 1.774 / mese
Spese annue Spese annue
€ 1
Proponi il tuo prezzoProponi il tuo prezzo

Classe Energetica

G
G
G
G
G
G
G
G
G
EP globale non rinnovabile:
100.00 kW h/m² anno
EP globale rinnovabile:
90.00 kW h/m² anno
EP invernale del fabbricato:
EP estiva del fabbricato:
Anno di costruzione:
1990
Riscaldamento:
Autonomo
Tipo impianto:
A stufa
Tipo alimentazione:
Altro

Ti interessa visionare l'immobile?

Fissa un appuntamento  Fissa un appuntamento

Richiedi informazioni

Clicca su Leggi per aprire l'informativa
* Questi campi sono obbligatori

Calcola il tuo mutuo

Semplice e senza impegno
Anticipo

( % )
Mutuo

( % )

pochi semplici passi

inserisci i tuoi dati
Questionario completato
Grazie per aver richiesto un appuntamento senza impegno con un nostro Consulente del Credito e Assicurativo.

Hai inserito correttamente tutti i dati necessari e a breve riceverai una e-mail con un link da convalidare per inviare i tuoi dati.
Affiliato
Grupposabinacures Srl
Via Servilia, 38 02032 Fara In Sabina (RI)

Il nostro staff


  • Andrea Lucio Giulivi
    Affiliato

  • Davide Galante
    Responsabile

  • Mirko Flamini
    Collaboratore

  • Elena Papi
    Coordinatrice
Via Servilia, 38 02032 Fara In Sabina (RI)
Zona: Fara Sabina-Passo Corese
Mostra su mappa
Orari: Dal Lunedi al Venerdi 08:30-13:00 / 15:30-19:30 Sabato 09:00 - 17:00 (orario continuato).
Affiliato
Grupposabinacures Srl
Via Servilia, 38 02032 Fara In Sabina (RI)

2026 Tecnocasa Franchising S.p.A. - P. IVA 08365160152 - Via Monte Bianco 60/A 20089 Rozzano (MI). Ogni agenzia ha un proprio titolare ed è autonoma. Privacy policy | Policy utilizzo | Cookie policy